マルセン第2ビル 4F
|
|
| 所在地 | 京都府亀岡市追分町馬場通 マルセン第2ビル 4F |
|---|---|
| 交通 | JR山陰本線 亀岡駅 徒歩3分 |
| 築年月 | 1991/01 | 新築/中古 | |
|---|---|---|---|
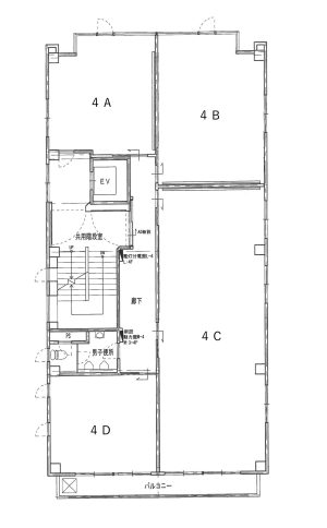
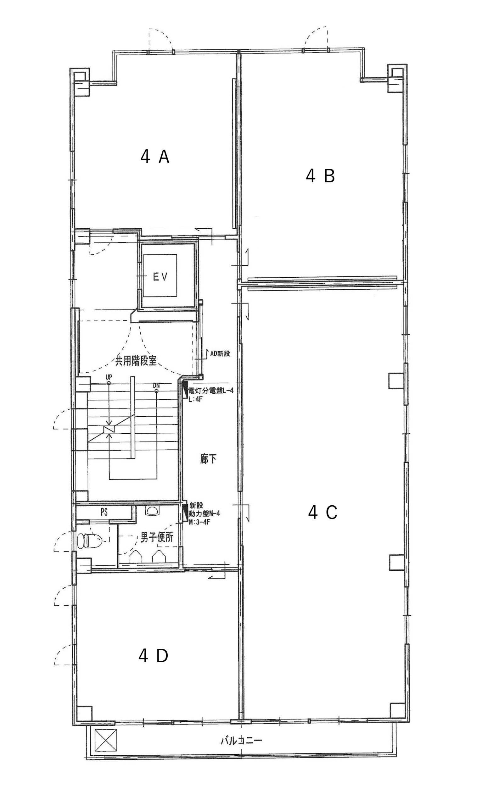
| 面積 | 159.64m² | 計測方式 | |
| バルコニー | 向き | 南 | |
| 建物階数 | 地上4階 | 部屋階数 | |
| 部屋/区画番号 | 総戸/区画数 | 5 | |
| 建物構造 | 鉄骨造 | ||
| 間取内容 | その他 15.5畳 その他 20.48畳 その他 39.12畳 その他 13.24畳 | ||
| 住宅保険料 | 要 | ||
| 駐車場 | 取引態様 | 専任 | |
| 引渡/入居時期 | 即時 | 現況 | 空家 |
| 周辺環境 | 亀岡小学校 亀岡中学校 | ||
| 設備・条件 | 事務所可 トイレ共同 エレベータ ・契約期間5年・1フロア全室契約可・分割貸し可(4A・4B・4D66,000円(共益費6,600円)、4C132,000円(共益費13,200円) | ||
| 物件番号 | マルセンダイ2ビル4カイ | ||
Loading...
※物件掲載内容と現況に相違がある場合は現況を優先と致します。
問合せ先株式会社亀岡ハウジング〒621-0814 京都府亀岡市三宅町107番地の7TEL 0771(23)6666 FAX 0771(24)5885フリーダイヤル 0120-62-2103京都府知事免許(11)第6247号































