八木町八木東所 借家
|
|
| 所在地 | 京都府南丹市八木町八木東所 八木町八木東所 借家 |
|---|---|
| 交通 | JR山陰本線 八木駅 徒歩8分 |
| 築年月 | 1978/07 | 新築/中古 | |
|---|---|---|---|
| 面積 | 67.48m² | 計測方式 | |
| バルコニー | 向き | 南 | |
| 建物階数 | 地上2階 | 部屋階数 | |
| 部屋/区画番号 | 総戸/区画数 | 1 | |
| 建物構造 | 木造 | ||
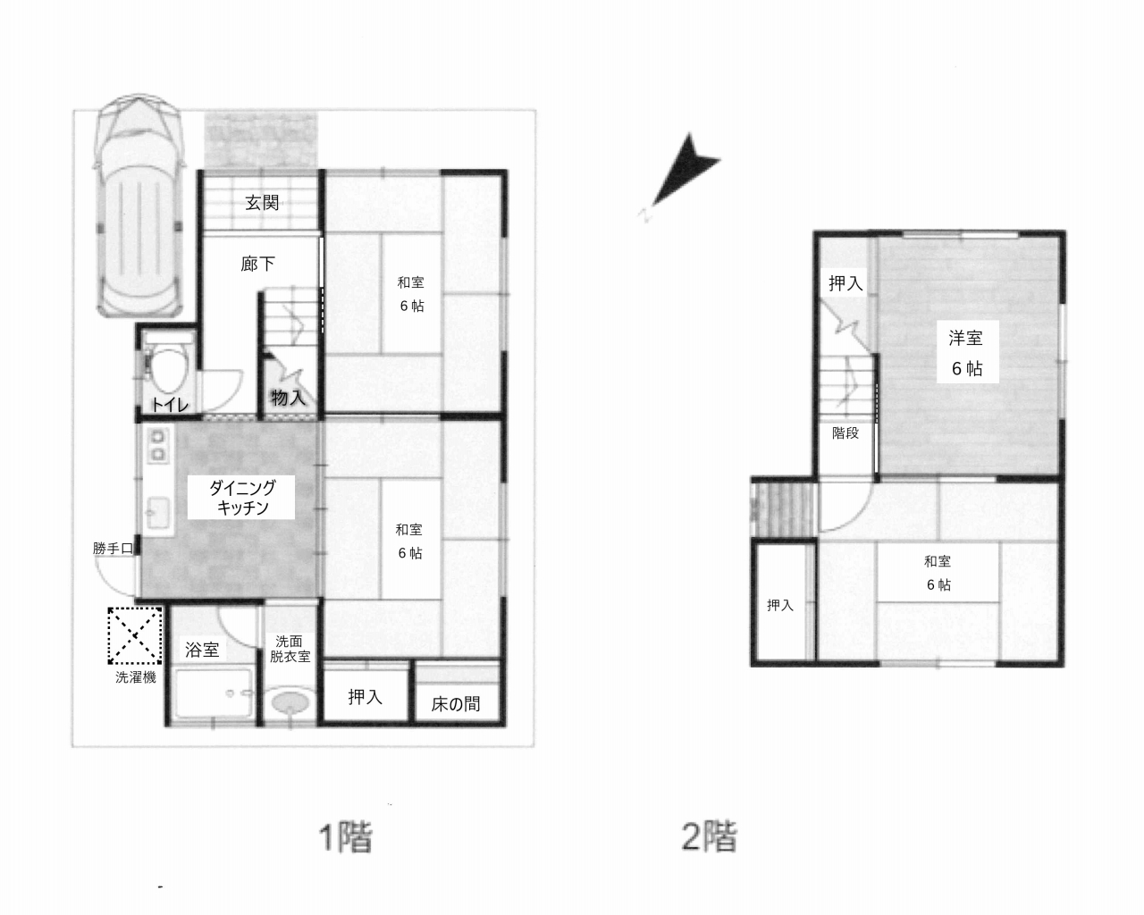
| 間取内容 | 和室 6畳 和室 6畳 和室 6畳 洋室 6畳 DK 4.5畳 | ||
| 住宅保険料 | 18,000円 2年 | ||
| 駐車場 | 空有 敷地内1台(軽) | 取引態様 | 専任 |
| 引渡/入居時期 | 即時 | 現況 | 空家 |
| 周辺環境 | 八木西小学校 八木中学校 | ||
| 設備・条件 | 2人入居可 ペット可能 敷金礼金0 給湯 追い焚き 独立洗面台 バス・トイレ別 温水洗浄便座 洗濯機置き場有 プロパンガス 公営水道 駐車場有 ・ペット飼育可(敷金1ヶ月分) | ||
| 物件番号 | ヤギチョウシャクヤ | ||
Loading...
※物件掲載内容と現況に相違がある場合は現況を優先と致します。
問合せ先株式会社亀岡ハウジング〒621-0814 京都府亀岡市三宅町107番地の7TEL 0771(23)6666 FAX 0771(24)5885フリーダイヤル 0120-62-2103京都府知事免許(11)第6247号























